Login


Register | Recover Password

 

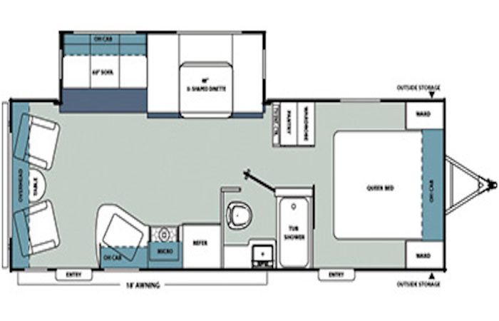
2013 Coachmen
Catalina 252RLS

$10,900

Details

  • RV Type: Sleeps 6
  • 5,913 lbs - 26'2'


Try our loan estimator to see your true out-the-door price.
No gimmicks, no hidden fees, and no surprise add-ons like extended warranties.